Gaziosmanpaşa’da dönüşüm hızla devam ediyor

Gaziosmanpaşa’da dönüşüm hızla devam ediyor

Gaziosmanpaşa’da dönüşüm hızla devam ediyor

Gaziosmanpaşa Mevlana Mahallesi ve Karayolları Mahallesi İmar Planları onaylandı. Buna göre vatandaşlar, imar planında belirtilen şartlarda inşaat hakkı artışı ve istedikleri müteahhitle proje yapma avantajlarıyla evlerini kentsel dönüşüm kapsamında yenileyebilecek.
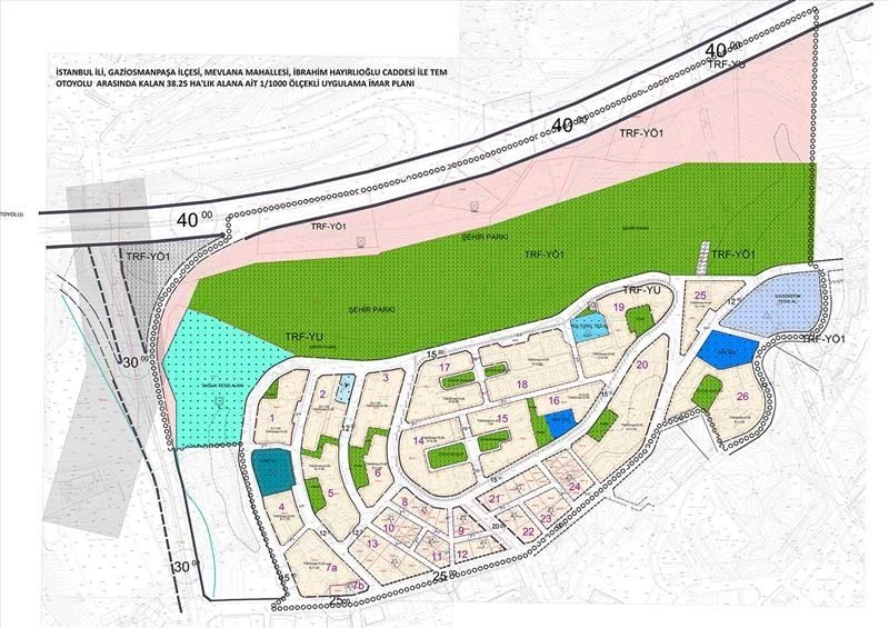
Gaziosmanpaşa Belediyesi tarafından, Mevlana Mahallesi’nde 38,25 ha’lık kısma ait ve Karayolları Mahallesi’nde 69,37 ha’lık kısma ait hazırlanan imar planları, Çevre ve Şehircilik Bakanlığı’nca onaylandı. Buna göre vatandaşlar istedikleri müteahhit firma anlaşıp, yeni imar planının sunduğu inşaat hakkı artışı kolaylığından faydalanarak evlerini kentsel dönüşüm kapsamında yeniden inşa edebilecek. 6306 Sayılı Kentsel Dönüşüm Kanunu kapsamında devlet teşvikli kredi, kira ve taşınma yardımları ile vatandaşlar, depreme dayanıklı, güvenli, modern konutlara sahip olacak.

Yeni imar planı ne gibi avantajlar sağlayacak?
Mevlana Mahallesi İmar Planı:
1/1000 ölçekli Uygulama İmar Planı üzerinden parsel bazlı uygulama yapılacak.
- En az 2 parselin birleşmesi koşuluyla 800 metrekare ve üzeri büyüklüğe sahip parsellerde inşaat hakkı yüzde 10 artırılarak, açığa çıkan iskan edilebilir bodrum katlar dahil yükseklik en çok 6 kat olarak uygulama yapılacaktır.
- Birleşme olma şartı aranmaksızın 2 bin metrekare ve üzeri büyüklüğe sahip parsellerde inşaat hakkı yüzde 10 arttırılarak uygulama yapılacaktır.
- E=1,50 yapılaşma alanlarında TAKSmax=0,40; yüzde 10 artırılarak E=1.65 yapılaşma hakkı ile açığa çıkan iskan edilebilir bodrum katlar dahil yükseklik en çok 7 kat olarak uygulama yapılacaktır.
- E=1,54 yapılaşma alanlarında TAKSmax=0,40; yüzde 10 artırılarak E=1.69 yapılaşma hakkı ile açığa çıkan iskan edilebilir bodrum katlar dahil yükseklik en çok 7 kat olarak uygulama yapılacaktır.
- E=2,50 yapılaşma alanlarında TAKSmax=0,40; yüzde 10 artırılarak E=2.75 yapılaşma hakkı ile açığa çıkan iskan edilebilir bodrum katlar dahil yükseklik en çok 8 kat olarak uygulama yapılacaktır.
(E: Emsal, TAKSmax: Taban alanı kat sayısı)
Karayolları Mahallesi İmar Planı:
1/1000 ölçekli Uygulama İmar Planı üzerinde belirlenen toplam 303 etap halinde yürütülecek.
- Maksimum kat adedi 10 kat belirlendi.
- Çekme Mesafeleri 5 metre olacak.
- TAKSmax:0.50-0.60 olacak şekilde uygulama yapılacaktır.
(TAKSmax: Taban alanı kat sayısı)
İmar Planı Plan Notlarında belirtilen özel şartların yerine getirilmesi halinde vatandaşlara parsel ölçeğinde uygulama imkanı da sunuldu. Ayrıca etap sınırları içinde 2/3 çoğunluk sağlanması durumunda anlaşma dışında kalan parsellerin minimum etap büyüklüğü 400 metrekare olması halinde etap sınırlarında değişiklik yapılabilir.
Vatandaşlar imar planları ile ilgili https://istanbul.csb.gov.tr/duyurular adresinden veya Gaziosmanpaşa Belediyesi Kentsel Dönüşüm Müdürlüğü Planlama Şefliği’nden bilgi alabilirler.


Güncel 29.06.2021 22:07:10 0

İlginizi Çekebilir

1

Antalya'da düzenlenen Yerli Malı Haftası etkinlikleri sürüyor

2

Isparta'da kalorifer kazanının patlaması sonucu yangın çıkan evdeki 3 kişi yaralandı

3

Mersin'de çikolata yedikten sonra rahatsızlanan 10 öğrenciden 7'si taburcu edildi

4

DEM Parti Eş Genel Başkanı Tülay Hatimoğulları, Mersin'de konuştu:

5

"İyilik Korosu" Türkan Şoray ile Mersin'de aynı sahneyi paylaşacak

6

Hatay'da tır dorsesinde 220 bin adet uyuşturucu hap ele geçirildi

7

Bozyazı ilçesinde kamyonetle çarpışan motosikletin sürücüsü yaralandı

8

Dünya 9-17 Yaş Grupları Hızlı ve Yıldırım Satranç Şampiyonası Antalya'da başladı

9

Hatay'da Türk Kızılay ve Kore Kızılhaçından depremzede çocuklara etkinlik

10

Akdeniz'de görülen Hint-Pasifik kökenli oluklu yengeçler İskenderun'da inceleniyor